Si te ha pasado que el arquitecto viene a mostrarte los planos de tu casa en 2D y un 3D general de la fachada y no entiendes nada sobre como está quedando tu casa en cada nivel ¡No termines por aprobar un diseño que no tienes claro! Esto te podría ocasionar malos ratos después. Asegúrate ahora que todo está aún en papeles. Veamos algunos elementos de dibujo técnico elemental para que tú mismo puedas leer tu proyecto.

Índice
General
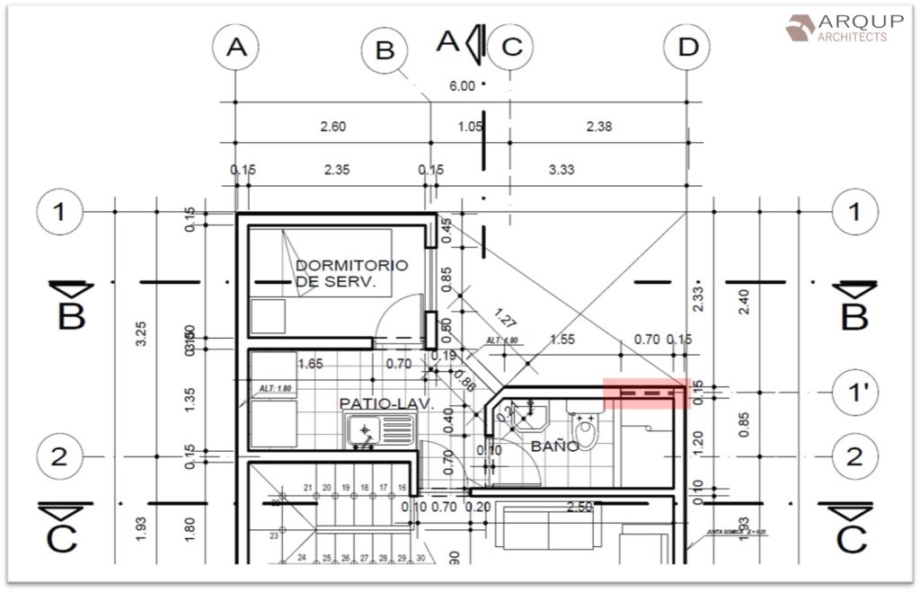
Los planos de arquitectura son la representación de un proyecto edificatorio mediante el dibujo técnico. Esta representación muestra el corte horizontal de un determinado nivel, por defecto a 1.20m del nivel de piso terminado. A partir de aquí se representan con línea continua los elementos por debajo de este nivel y con línea segmentada los elementos por encima del nivel. Por ejemplo: Una ventana se presenta con línea continua y una ventana alta con línea segmentada. Otro ejemplo son las vigas o los armarios altos de la cocina siempre con línea segmentada.
también existen estándares con diferentes tipos de líneas no presentan elementos físicos (muros, vigas, puertas, inodoros, etc.), pero brindan información general de dibujo o representan algunas condiciones de la construcción. Por ejemplo si hacemos una equis con línea delgada segmentada en un ambiente. Esto representa que este area no está techado.
Todas estas técnicas de representación deben ser entendidos por los implicados en el área del diseño y la construcción aquí o en cualquier país, no importa el idioma en que el plano se encuentre. Sin embargo el dibujo técnico a veces tiene alguna variaciones, que no deberá afectar su lectura. Estas modificaciones son debido principalmente a escalas, magnitud del proyecto, nivel de detalle y algunas veces a gustos del dibujante. Cabe notar que si hubiera algún detalle especial, podemos indicar y escribir textualmente o hacer un detalle especial para el elemento.
A continuación veremos algunos elementos y líneas de representación típicos. Las siguiente representaciones que daremos no son las únicas pero son las más comunes. Si las entiendes te será super fácil interpretar sus equivalentes en otros planos.
Elementos
Muros
Muy fáciles de reconocer, estarán representados con líneas paralelas continuas de mayor grosor, aveces según la escala también suelen representarla con una franja negra resaltante.

Puertas
Normalmente en los planos de planta se representan abierta a 90 grados y marcando su la trayectoria de su abertura con una línea curva o recta.


Puedes reconocer los elementos?
Ventanas
Ve representa con 4 líneas continuas paralelas delgadas, las dos del centro más juntas que las exteriores. Sin embargo, las ventanas que se encuentran por encima de 1.20m. Se representan con dos líneas segmentadas centrales y la representación de muro se mantiene en esta zona.


Simbología para ducha
Normalmente se muestra el espacio que contendrá el agua delimitado por los muros y cerrando con doble línea continua delgada si tiene un pequeño murito de aprox. 25 cm por donde ingresa la persona, este puede tener vidrio o no. Pero lo más resaltante es la indicación del sumidero que se representa con un pequeño círculo y unas líneas que parten del mismo hacia los lados o esquinas de la ducha, esto representa la pendiente del sumidero. ten en consideración que por lo general las duchas pueden ser curvas o rectangulares en el plano de planta.

Inodoros
Los hay de diferentes tipos el dibujo de la vista de planta puede variar, pero son fáciles de reconocer por el nombre de ambiente donde se encuentran.

Cocina
Generalmente se indica con pequeños círculos la cantidad de estufas.

Escalera
Las escaleras, se representan dibujando en planta cada «paso».
¿Qué es el paso?
Se llama «paso» al área donde pisas cuando subes o bajas las escaleras, aproximadamente mire entre 25 o 35 cm en una escalera típica.
En el plano cada paso que se encuentren por debajo del nivel donde el plano corta (es decir a 1.20 m) debe representarse con línea continua delgada. Además estos pasos deben estar enumerados. Los pasos que se encuentren por encima del nivel 1.20m, deberán representarse con línea segmentada.
Además por el medio del ancho de la escalera pasaremos una línea que termina en flecha que indicará el sentido de la escalera. También debemos ubicar una línea que indica el momento en que la escalera supera el 1.20 m esa línea debe ser delgada y continua y en el medio debe tener un símbolo parecido a la letra «v» y al otro lado también (parecido a una radiografía cardiaca). Veamos el ejemplo.

Simbología de líneas
Dimensionamiento
Las líneas de dimensionamiento, conocidas también, como cotas se representan con líneas delgadas continuas. Estas líneas se encuentran delimitadas por pequeñas líneas que indican de dónde a dónde se está midiendo. Por supuesto entre estas dos pequeñas líneas va el número que indica cuánto mide ese segmento. Si no hay ninguna indicación de la unidades se debe considerar metros. Depende de la magnitud del proyectos pueden ir varios niveles de dimensionamiento que se posicionan en paralelo. Veamos el ejemplo.

Corte o Sección
Las líneas que presentan corte se representan con línea larga segmentada y punto. Estas líneas deben ser bastante gruesas, un poco más gruesos que los muros. Y nos indican la ubicación de cada corte o sección. Además debe indicar hacia donde «está mirando» el corte sección. Para esto se coloca una pequeña flecha que indica la dirección del corte. También se coloca el nombre de la sección. Los nombres normalmente van con letras y en mayúscula.

Proyección de vacío
Se coloca en los ambiente donde no hay techo o losa que hace de cobertura para el nivel del plano. Se representa con líneas alargadas segmentadas delgadas. Normalmente se colocan 2 lineas cruzadas. buscando abarcar todo el ambiente.

Vacío
Se coloca en los ambiente donde no hay piso o losa que hace de piso para el nivel del plano (es decir área donde no puedes caminar porque hay un vacío en ese nivel). Se representa con líneas continuas delgadas. Normalmente se colocan 2 lineas cruzadas buscando abarcar todo el ambiente.

Proyección de elementos existentes (Losa, vigas, dinteles)
Para representar cualquier elemento existente que se encuentre por encima de 1.20 m. Por ejemplo, losas, vigas, dinteles, cubiertas, voladizos, etc. se representa con la proyección de los bordes del elemento con líneas segmentadas cortas delgadas. No confundir con las líneas para representación de proyección de vacío, que son líneas segmentadas alargadas delgadas.


Textura de pisos
Generalmente se coloca textura de piso con trama cuadrangular o rectangular en los ambientes más propensos a la humedad como el baño, la cocina y lavandería. A Veces cuando el piso tiene alguna característica en particular a resaltar en arquitectura también se representa. Esto no quiere decir que la sala y dormitorios no tienen acabados en los pisos, solo es una forma de representación común, para no saturar el plano.







I truly appreciate this post. I¡¦ve been looking everywhere for this! Thank goodness I found it on Bing. You’ve made my day! Thx again
Thank you very much Jonna!
gracias por el aporte, ahora lo tengo claro
Exelente el modo de esplicar
Muchas gracias Sergio, tu comentario me motiva a seguir escribiendo!
Good day! This is my first visit to your blog!
We are a group of volunteers and starting a new initiative in a community in the same niche.
Your blog provided us valuable information to
work on. You have done a extraordinary job! https://Lvivforum.Pp.ua/
exelente todos y muy agradecido con ustedes por brindarnos una exelente ayuda didacta para la construccion 10 puntos.
Gracias por esta página, es un resumen realmente interesante para quienes comienzan con el diseño de planos. En mi caso, soy profesora de Tecnología de secundaria en un centro público, y debo decir que vamos a seguir este artículo para desarrollar una actividad en la que el alumnado debe elaborar unos planos. ¡Seguro que con esto «engancho» a más de uno/a!
Esta información es importante para los que estudiamos esta carrera